繁體
登录
MB165695X/2020-00087
中牟县自然资源局
综合,政务,公报,公示,公报公示
2020-03-13
2020-03-13
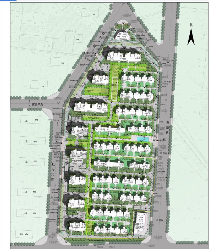
绿都雅叙(一期)建设工程规划许可证信息公示
附件
绿都雅叙(一期)建设工程规划许可证信息公示.pdf
主办单位:中牟县人民政府办公室
地址:河南省郑州市中牟县商都大道1号
邮编:451450
网站标识:4101220001
豫ICP备13002960号-1
豫公网安备 41012202000162号