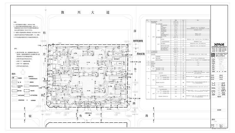
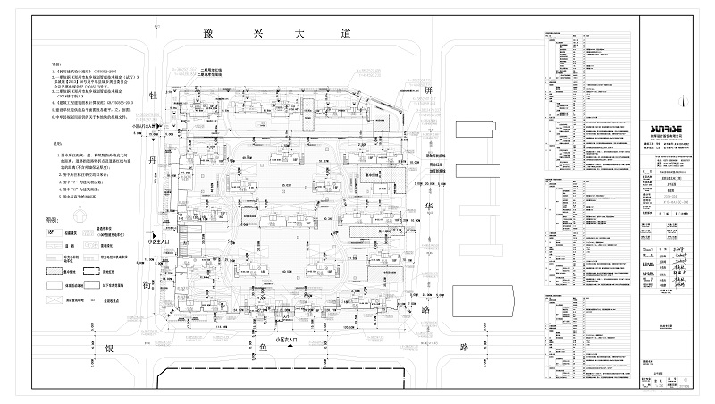
项目名称: | 星联安郡北苑 |
类型: | 建设工程规划许可证 |
公示/公告类别: | 听证会公告 |
建设/用地单位: | 郑州星联绿博置业有限公司 |
用地位置: | 郑州国际文化创意产业园,牡丹一街东、豫兴大道南、屏华路西 |
用地面积: | 65433.23㎡ |
总建筑面积: | 225142.06㎡ |
本次报建建筑面积: | 40645.08㎡ |
建筑密度: | 18.77% |
容积率: | 2.493 |
绿地率: | 38.81% |
建筑高度: | 60米 |
停车位: | 机动车停车位1545辆 |
公示期限: | 5个工作日 |
公示日期: | 2019年6月17日 |
截止日期: | 2019年6月21日 |
经办科室: | 工程规划科 |
咨询电话: | 0371-62105002 |
经办人: | 赵琳 |
附加说明: | 查询详细内容,请出示身份证明,到我局办理相关手续后查询。依据《城乡规划法》、《行政许可法》、《河南省城市规划公示制度》等有关法律法规,特此公示。如有意见和建议,请于公示时间内向我局反馈。 信访办电话:0371-62105008。 |
详细内容: | 总平图、鸟瞰图、该听证会公告为征求意见公示。 |



