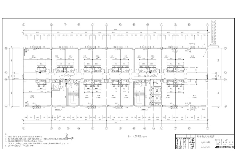
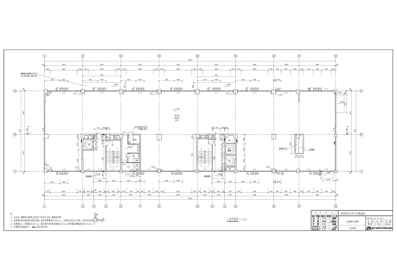
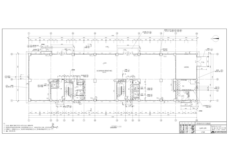
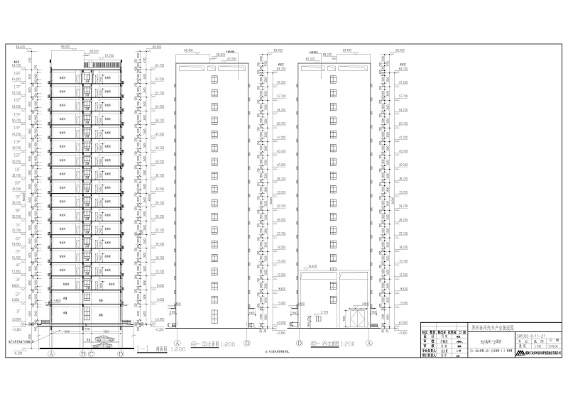
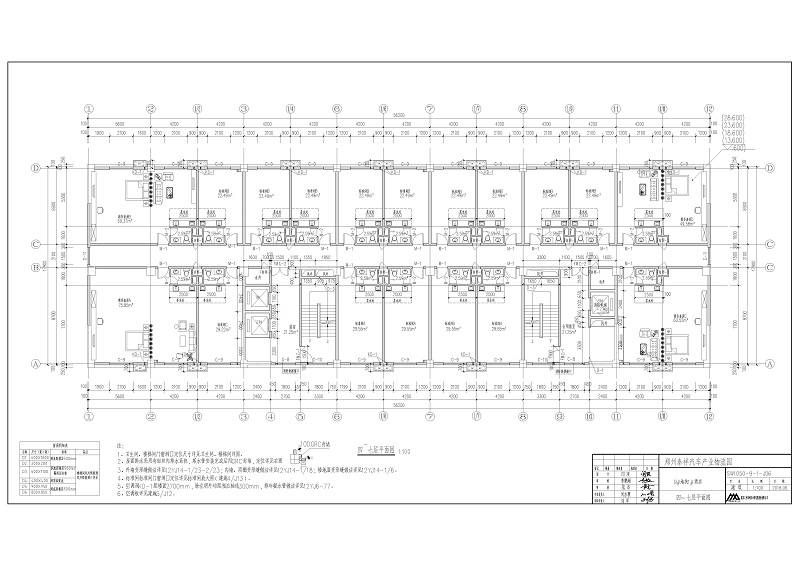
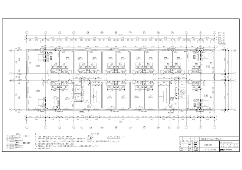
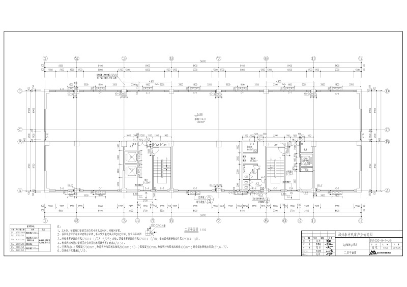
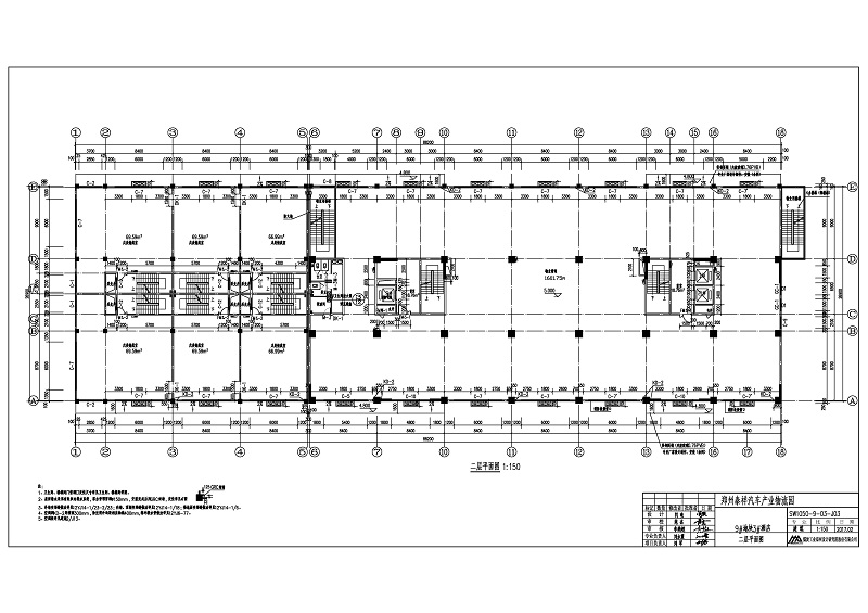
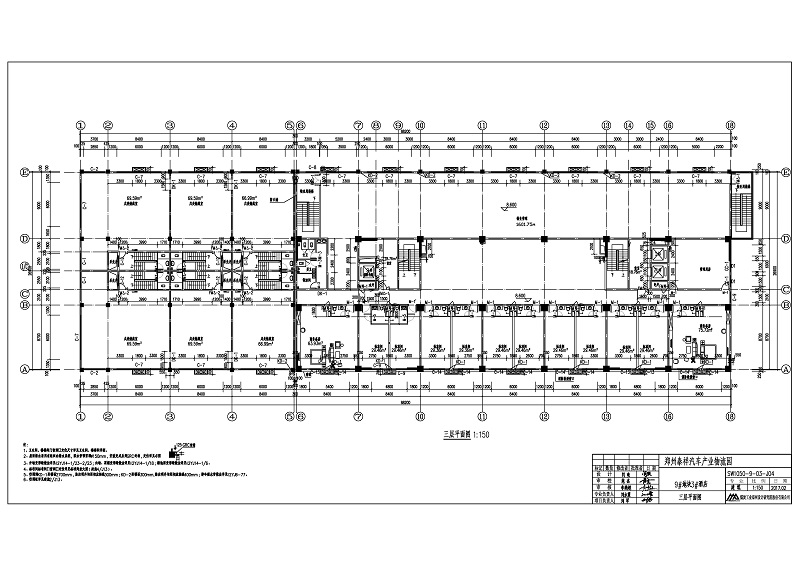
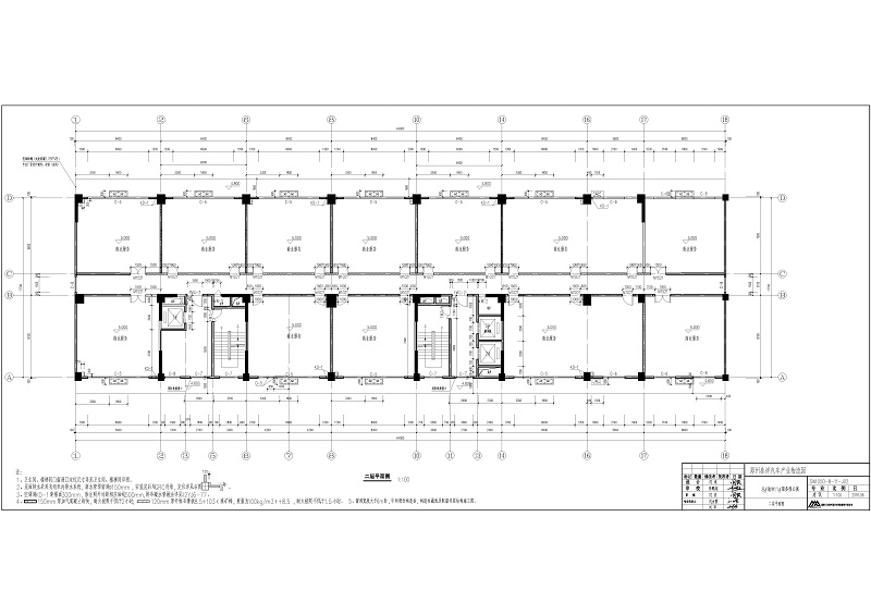
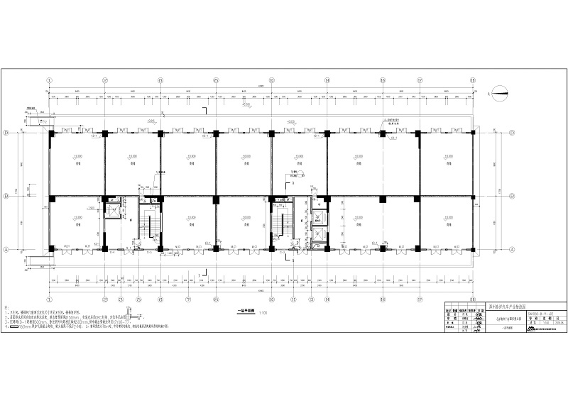
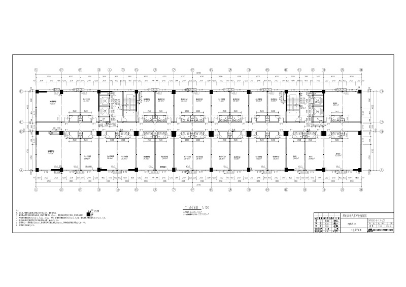
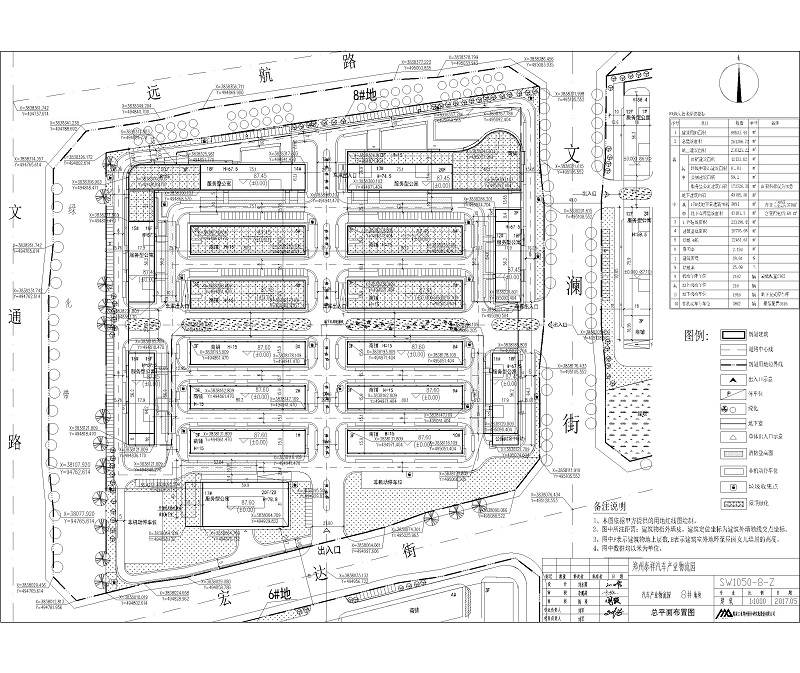
项目名称: | 郑州泰祥汽车产业物流园 |
类型: | 建设工程规划许可证 |
公示/公告类别: | 规划调整公示 |
建设/用地单位: | 郑州鑫泰汽车产业开发有限公司 |
用地位置: | 中牟县文通路东,远航路南 |
用地面积: | 8#地块:89531.44㎡ ; 9#地块:88980㎡ |
总建筑面积: | 8#地块:264306.72㎡; 9#地块:188760.77㎡ |
本次报建建筑面积: | 8#地块:216265.23㎡; 9#地块:99684.05㎡ |
建筑密度: | 8#地块:29.91% ; 9#地块:36.73% |
容积率: | 8#地块:2.493 ; 9#地块:1.99 |
绿地率: | 8#地块:25.09% ; 9#地块:25.13% |
建筑高度: | 80米 |
停车位: | 8#地块:2162辆; 9#地块:1498辆 |
公示期限: | 10个工作日 |
公示日期: | 2019年5月22日 |
截止日期: | 2019年6月4日 |
经办科室: | 工程规划科 |
咨询电话: | 0371-62105002 |
经办人: | 马芳 |
附加说明: | 查询详细内容,请出示身份证明,到我局办理相关手续后查询。依据《城乡规划法》、《行政许可法》、《河南省城市规划公示制度》等有关法律法规,特此公示。如有意见和建议,请于公示时间内向我局反馈。 信访办电话:0371-62105008。 |
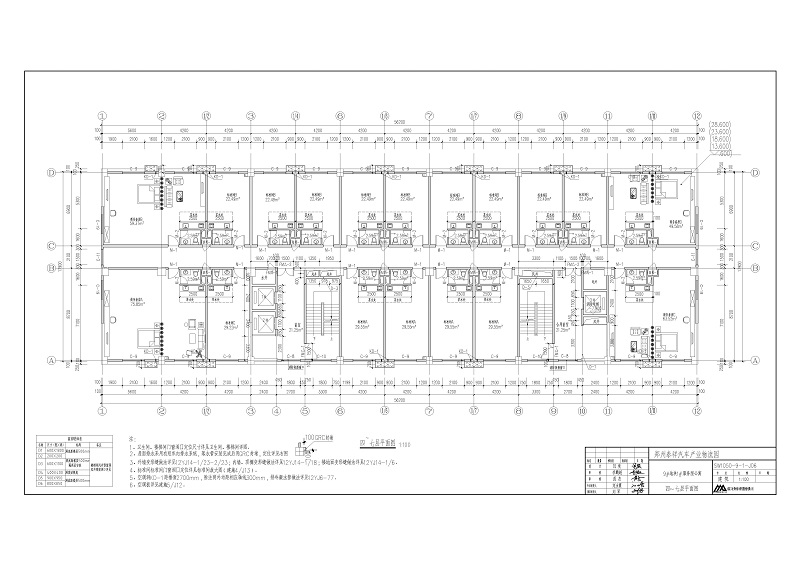
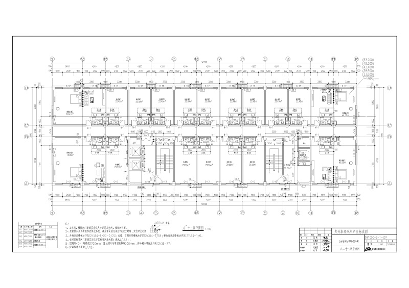
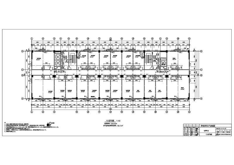
详细内容: | 8#、9#地块总平图、鸟瞰图、效果图、主要平面图、立面图,该公示为征求意见公示。 |


































