项目名称: | 路劲·汇景花园 |
类型: | 物业用房调整公示 |
公示/公告类别: | 批前公示 |
建设/用地单位: | 郑州龙港置业有限公司 |
用地位置: | 中牟县城西区、商都大街北、人文路东 |
用地面积: | 183025.40㎡ |
总建筑面积: | 681626.75㎡ |
本次报建建筑面积: | 426.76㎡ |
建筑密度: | 24.97% |
容积率: | 2.992 |
绿地率: | 30.68% |
建筑高度: | 99.6米 |
停车位: | 机动车停车位4403辆;非机动车停车位9899辆 |
公示期限: | 10个工作日 |
公示日期: | 2019年05月9日 |
截止日期: | 2019年05月22日 |
经办科室: | 工程规划科 |
咨询电话: | 0371-62105002 |
经办人: | 赵琳 |
附加说明: | 查询详细内容,请出示身份证明,到我局办理相关手续后查询。依据《城乡规划法》、《行政许可法》、《河南省城市规划公示制度》等有关法律法规,特此公示。如有意见和建议,请于公示时间内向我局反馈。 信访办电话:0371-62105008。 |
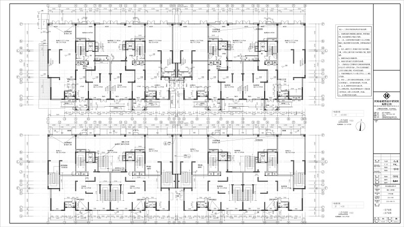
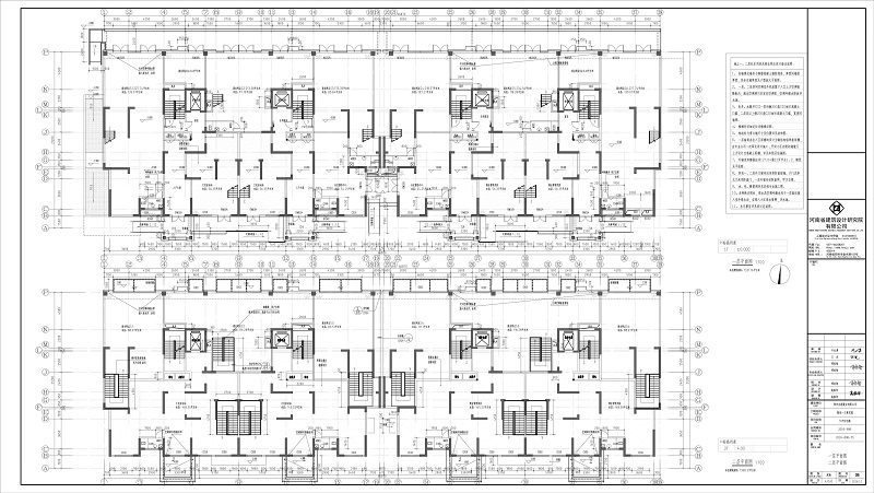
详细内容: | 总平图、35#楼原建筑平面图、35#楼变更后建筑平面图、单体效果图、,该公示为征求意见公示。 |



