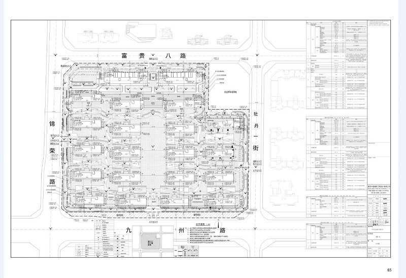
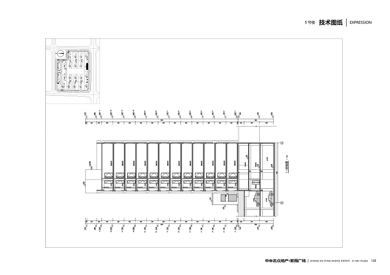
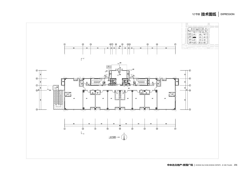
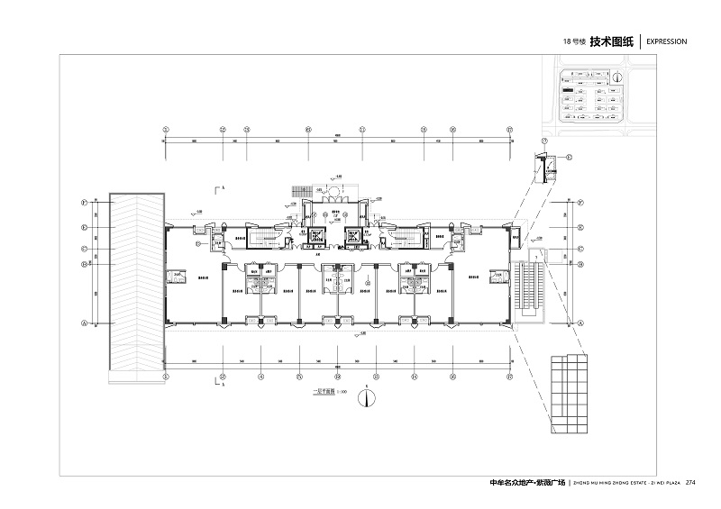
项目名称: | 紫薇广场 |
类型: | 建设工程规划许可证 |
公示/公告类别: | 批前公示 |
建设/用地单位: | 中牟名众房地产有限公司 |
用地位置: | 郑州市白沙园区绿博园区东,九州路北侧,牡丹一街西侧 |
用地面积: | 76463.356㎡ |
总建筑面积: | 398481.70㎡ |
本次报建建筑面积: | 398481.70㎡ |
建筑密度: | 27.86% |
容积率: | 3.48 |
绿地率: | 30.85% |
建筑高度: | 59.30米 |
停车位: | 机动车停车位3287辆;非机动车停车位13523辆 |
公示期限: | 10个工作日 |
公示日期: | 2019年05月09日 |
截止日期: | 2019年05月22日 |
经办科室: | 工程规划科 |
咨询电话: | 0371-62105002 |
经办人: | 张萌 |
附加说明: | 查询详细内容,请出示身份证明,到我局办理相关手续后查询。依据《城乡规划法》、《行政许可法》、《河南省城市规划公示制度》等有关法律法规,特此公示。如有意见和建议,请于公示时间内向我局反馈。 信访办电话:0371-62105008。 |
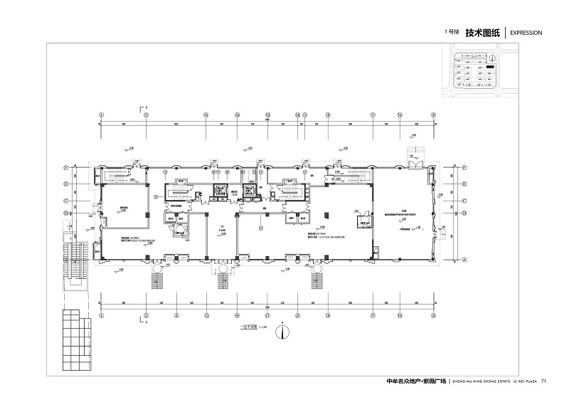
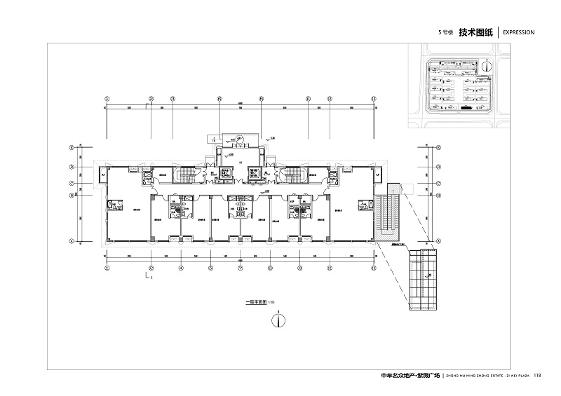
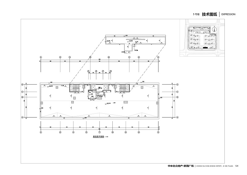
详细内容: | 总平图、设计方案主要平面图、日照图、立面图、效果图、海绵城市设计图,该公示为征求意见公示。 |

























