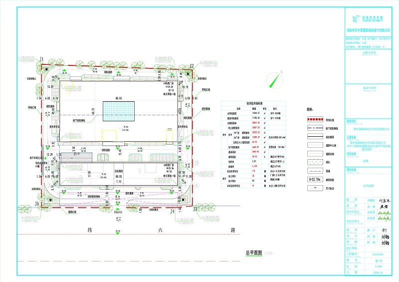
项目名称: | 郑州金源瑞达汽车部品有限公司年产1500吨电磁线及20万套汽车发电机建设项目 |
类型: | 建设工程规划许可证 |
公示/公告类别: | 批前公示 |
建设/用地单位: | 郑州金源瑞达汽车部品有限公司 |
用地位置: | 郑州市中牟县纬六路以北,建设路以东 |
用地面积: | 14044.57㎡ |
总建筑面积: | 38457.54㎡ |
建筑密度: | 48.33% |
容积率: | 2.87 |
绿地率: | 6.10% |
建筑高度: | 24.00米 |
停车位: | 机动车停车位118辆;非机动车停车位41辆 |
公示期限: | 10个工作日 |
公示日期: | 2019年5月7日 |
截止日期: | 2019年5月 21 日 |
经办科室: | 工程规划科 |
咨询电话: | 0371-62105002 |
经办人: | 刘璞 |
附加说明: | 查询详细内容,请出示身份证明,到我局办理相关手续后查询。依据《城乡规划法》、《行政许可法》、《河南省城市规划公示制度》等有关法律法规,特此公示。如有意见和建议,请于公示时间内向我局反馈。 信访办电话:0371-62105008。 |
详细内容: | 总平图、设计方案主要平面图、立面图、效果图、鸟瞰图、海绵城市。 |











