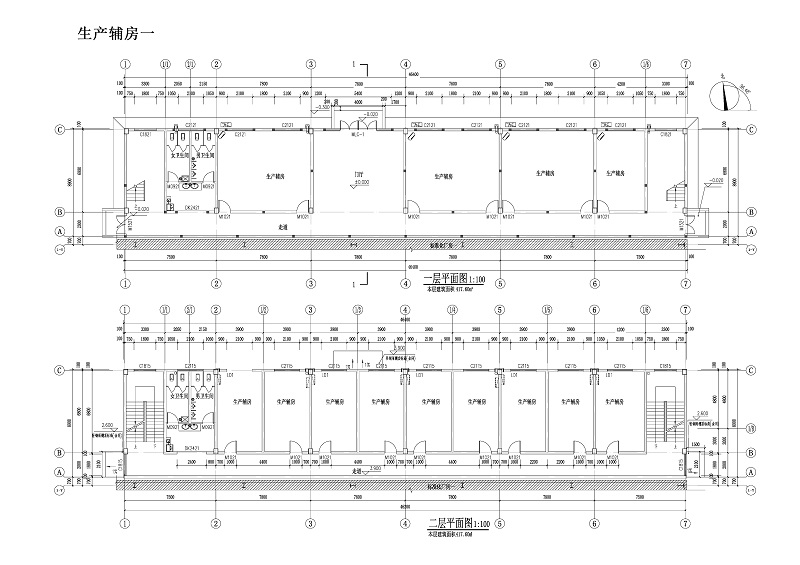
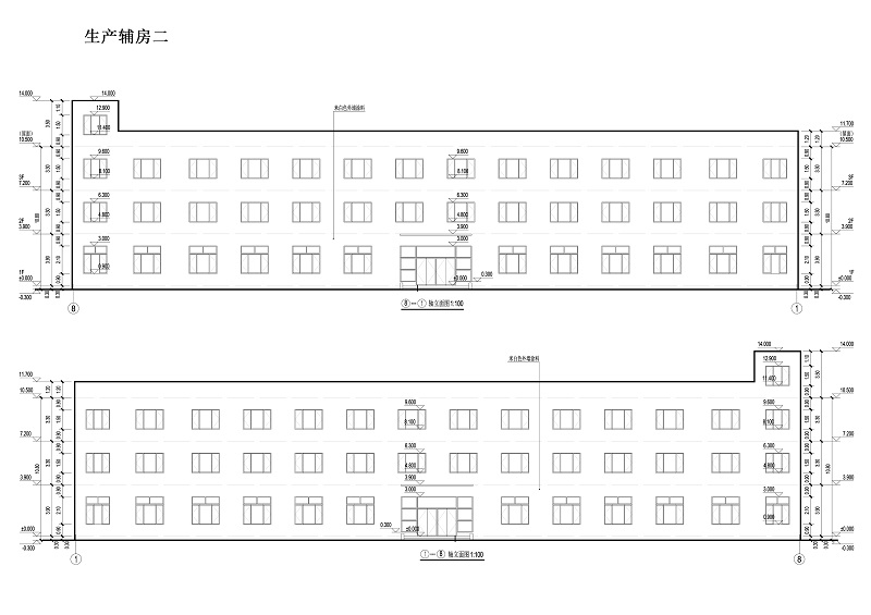
项目名称: | 年产汽车前桥、后桥总成40万套及三元催化器40万套总装项目 |
类型: | 建设工程规划许可证 |
公示/公告类别: | 批前公示 |
建设/用地单位: | 郑州华尔信汽车零部件有限公司 |
用地位置: | 中牟汽车产业集聚区北临泰和路, 南临纬四路,西临康平路 |
用地面积: | 41610.00㎡ |
总建筑面积: | 33527.51㎡ |
本次报建建筑面积: | 25745.25㎡ |
建筑密度: | 67.69% |
容积率: | 1.36 |
绿地率: | 3.96% |
建筑高度: | 12.00米 |
停车位: | 机动车停车位119辆 |
公示期限: | 10个工作日 |
公示日期: | 2019年3月19日 |
截止日期: | 2019年4月1日 |
经办科室: | 工程规划科 |
咨询电话: | 0371-62105002 |
经办人: | 马芳 |
附加说明: | 查询详细内容,请出示身份证明,到我局办理相关手续后查询。依据《城乡规划法》、《行政许可法》、《河南省城市规划公示制度》等有关法律法规,特此公示。如有意见和建议,请于公示时间内向我局反馈。 信访办电话:0371-62105008。 |
详细内容: | 总平图、鸟瞰图、效果图、平面图、立面图、指标表,该公示为征求意见公示。 |














