项目名称: | 郑州东升玻璃有限公司年产180万㎡低辐射LOW-E钢化中空节能玻璃 |
类 型: | 建设工程规划许可证 |
公示/公告类别: | 批前公示 |
建设/用地单位: | 郑州东升玻璃有限公司 |
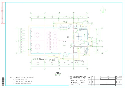
用地位置: | 中牟县汽车产业集聚区,姚家镇翰林南路以西、纬三路以南 |
用地面积: | 43110.65㎡ |
总建筑面积: | 33668.8㎡ |
本次报建建筑面积: | 33668.8㎡ |
建筑密度: | 69.5% |
容积率: | 1.44 |
绿地率: | 3.6% |
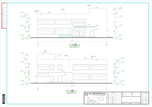
建筑高度: | 17.4米 |
停车位: | 机动车停车位86辆 |
公示期限: | 10个工作日 |
公示日期: | 2018年12月26日 |
截止日期: | 2019年1月 9 日 |
经办科室: | 工程规划科 |
咨询电话: | 0371-62105002 |
经 办 人: | 马芳 |
附加说明: | 查询详细内容,请出示身份证明,到我局办理相关手续后查询。依据《城乡规划法》、《行政许可法》、《河南省城市规划公示制度》等有关法律法规,特此公示。如有意见和建议,请于公示时间内向我局反馈。 信访办电话:0371-62105008。 |
详细内容: | 总平图、鸟瞰图、效果图、平面图、立面图、指标表,该公示为征求意见公示。 |













