项目名称: | 年产片剂1290.4万片,胶囊206.4万粒,注射液197.8万支,注射用冻干粉针剂293.6万支建设项目 |
类 型: | 建设工程规划许可证 |
公示/公告类别: | 批前公示 |
建设/用地单位: | 辅仁药业集团熙德隆肿瘤药品有限公司 |
用地位置: | 中牟县官渡组团,金菊四街东、辉煌三路南 |
用地面积: | 104241.10㎡ |
总建筑面积: | 104213.41㎡ |
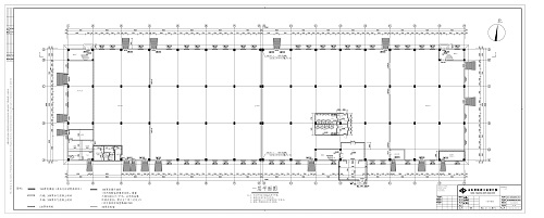
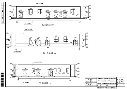
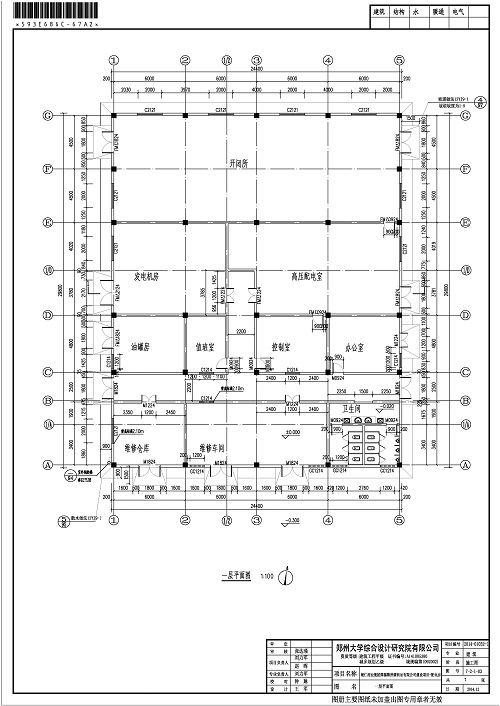
本次报建建筑面积: | 14724.68㎡ |
建筑密度: | 40.03% |
容积率: | 1.05 |
绿地率: | 9.23% |
建筑高度: | 21.45米 |
停车位: | 机动车停车位453辆;非机动车停车位180辆 |
公示期限: | 10个工作日 |
公示日期: | 2018年12月3日 |
截止日期: | 2018年12月14日 |
经办科室: | 工程规划科 |
咨询电话: | 0371-62105002 |
经 办 人: | 赵琳 |
附加说明: | 查询详细内容,请出示身份证明,到我局办理相关手续后查询。依据《城乡规划法》、《行政许可法》、《河南省城市规划公示制度》等有关法律法规,特此公示。如有意见和建议,请于公示时间内向我局反馈。 信访办电话:0371-62105008。 |
详细内容: | 总平图、设计方案主要平面图、立面图、效果图、日照分析图、指标表,该公示为征求意见公示。 |











