繁體
登录
660939312/2018-00354
中牟县城乡规划中心
城乡建设
2018-11-30
2018-11-30
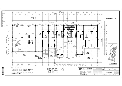
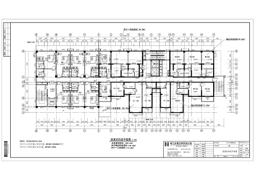
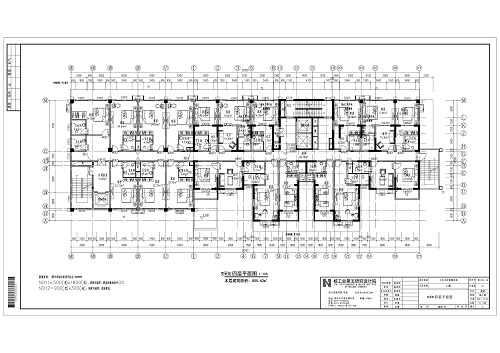
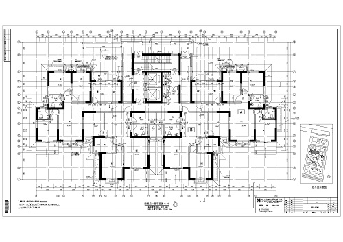
郑州万翔房地产开发有限公司批前公示
主办单位:中牟县人民政府办公室
地址:河南省郑州市中牟县商都大道1号
邮编:451450
网站标识:4101220001
豫ICP备13002960号-1
豫公网安备 41012202000162号