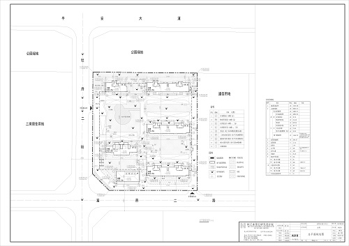
项目名称: | 洺悦家园(东区) |
类 型: | 建设工程规划许可证 |
公示/公告类别: | 批前公示 |
建设/用地单位: | 郑州中电建文博置业有限公司 |
用地位置: | 郑州国际文化创意产业园牡丹二街以东、平安大道以南、富贵二路以北、文通路以西 |
用地面积: | 17721.86㎡ |
总建筑面积: | 58482.07㎡ |
本次报建建筑面积: | 58482.07㎡ |
建筑密度: | 17.44% |
容积率: | 2.48 |
绿地率: | 35.18% |
建筑高度: | 54.2米 |
停车位: | 机动车停车位334辆;非机动车停车位574辆 |
公示期限: | 10个工作日 |
公示日期: | 2018年11月5日 |
截止日期: | 2018年11月16日 |
经办科室: | 工程规划科 |
咨询电话: | 0371-62105002 |
经 办 人: | 肖会敏 |
附加说明: | 查询详细内容,请出示身份证明,到我局办理相关手续后查询。依据《城乡规划法》、《行政许可法》、《河南省城市规划公示制度》等有关法律法规,特此公示。如有意见和建议,请于公示时间内向我局反馈。 信访办电话:0371-62105008。 |
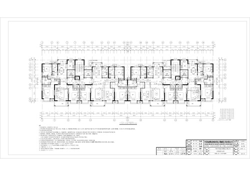
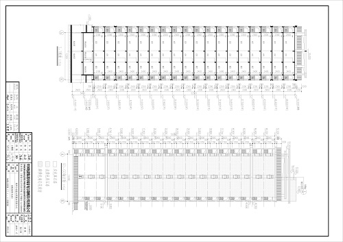
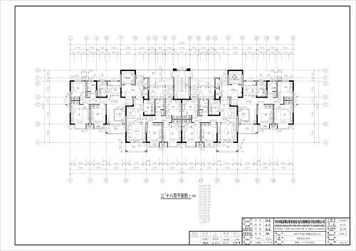
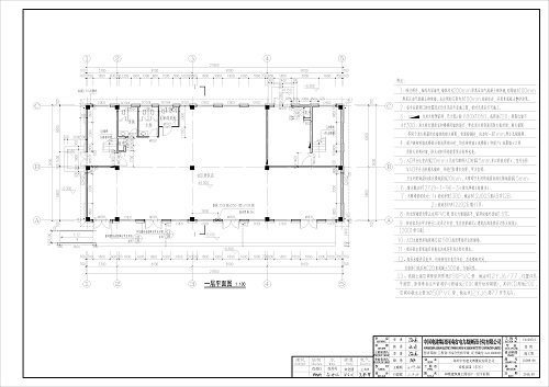
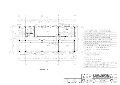
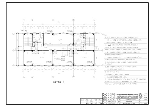
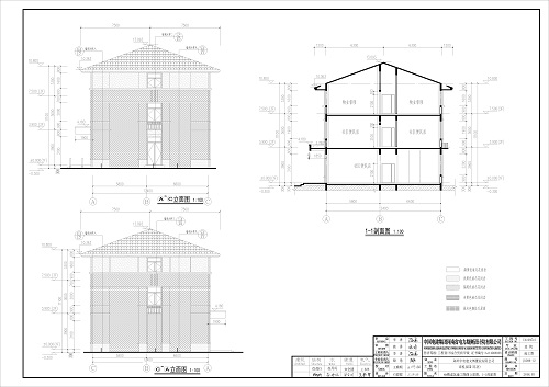
详细内容: | 总平图、设计方案主要平面图、立面图、效果图、海绵城市设计图、日照分图,该公示为征求意见公示。 |



















