项目名称: | 生态城一号院 |
类 型: | 建设工程规划许可证 |
公示/公告类别: | 批前公示 |
建设/用地单位: | 河南新田万豪置业有限公司 |
用地位置: | 中牟县万滩镇镇兴大道北、环湖路南 |
用地面积: | 72157.61㎡(108.24亩) |
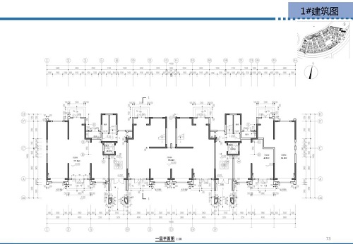
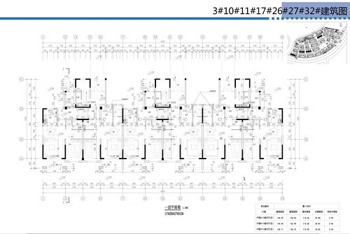
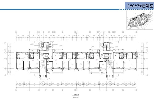
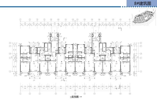
总建筑面积: | 111918.76㎡ |
本次报建建筑面积: | 111918.76㎡ |
建筑密度: | 22.96%(<25%) |
容积率: | 1.195(≤1.2) |
绿地率: | 35.07%(>35%) |
建筑高度: | 31.40米(<40米) |
停车位: | 机动车停车位636个(住宅每户1车位,套内建筑面积≥130㎡的户型按2辆/户配建;配套设施和商业按1车位/百平方米建筑面积配建;最低配建636个),非机动车停车位1191个(住宅1.5车位/户,配套设施和商业按5车位/百平方米建筑面积配建;最低配建1191个) |
公示期限: | 10个工作日 |
公示日期: | 2018年 9月12日 |
截止日期: | 2018年9月26日 |
经办科室: | 工程规划科 |
咨询电话: | 0371-62105002 |
经办人: | 张萌 |
附加说明: | 查询详细内容,请出示身份证明,到我局办理相关手续后查询。依据《城乡规划法》、《行政许可法》、《河南省城市规划公示制度》等有关法律法规,特此公示。如有意见和建议,请于公示时间内向我局反馈。 信访办电话:0371-62105008。 |
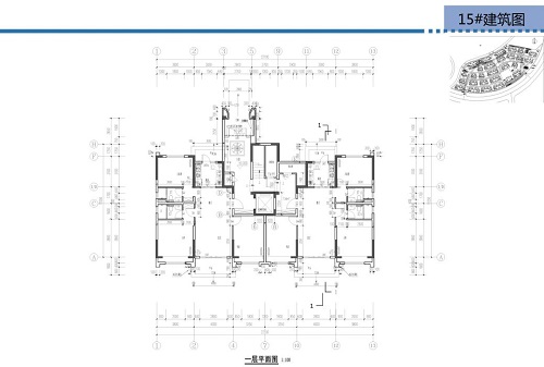
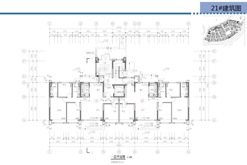
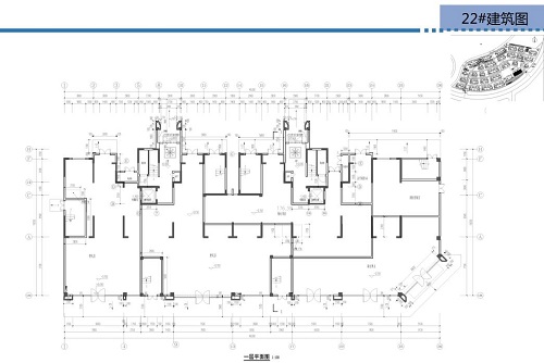
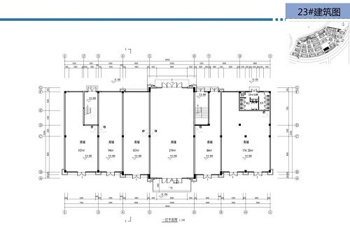
详细内容: | 总平图、设计方案主要平面图、立面图、效果图、海绵城市总图、指标表、日照分析报告,该公示为征求意见公示。 |


















