项目名称: | 建业瑞园 |
类 型: | 建设工程规划许可证 |
公示/公告类别: | 批前公示 |
建设/用地单位: | 河南建业实景演出文化发展有限公司 |
用地位置: | 郑州国际文化创意产业园,安合路南、文创路西、西干渠北、秋彤路东 |
用地面积: | 106422.84㎡ |
总建筑面积: | 260976.30㎡ |
本次报建建筑面积: | 260976.30㎡ |
建筑密度: | 24.79% |
容积率: | 1.634 |
绿地率: | 35.27% |
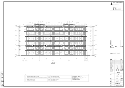
建筑高度: | 34.55m |
停车位: | 机动车位1582辆;非机动车位1698辆 |
公示期限: | 10个工作日 |
公示日期: | 2018年9月7日 |
截止日期: | 2018年9月20日 |
经办科室: | 工程规划科 |
咨询电话: | 0371-62105002 |
经办人: | 黄德玄 |
附加说明: | 查询详细内容,请出示身份证明,到我局办理相关手续后查询。依据《城乡规划法》、《行政许可法》、《河南省城市规划公示制度》等有关法律法规,特此公示。如有意见和建议,请于公示时间内向我局反馈。 信访办电话:0371-62105008。 |
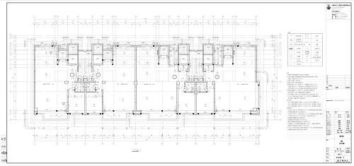
详细内容: | 总平图、设计方案主要平面图、立面图、效果图、指标表、日照分析报告,该公示为征求意见公示。 |








