项目名称: | 金科博翠书院项目 |
类型: | 住宅 |
公示类别: | 批前公示 |
用地位置: | 郑州国际文化创意产业园富贵九路南、紫寰路东、楚袖街西、富贵十路北 |
土地使用权面积: | 38780.29平方米 |
公示期限: | 10个工作日 |
公示日期: | 2018年 8月 9日 至 2018年 8月22日 |
经办科室: | 中牟县城乡规划中心工程规划科 |
咨询电话: | 0371-62105002 |
经办人: | 刘璞 |
附加说明: | 查询详细内容,请出示身份证明,到我局办理相关手续后查询。依据《城乡规划法》、《行政许可法》、《河南省城市规划公示制度》等有关法律法规,特此公示。如有意见和建议,请于公示时间内向我局反馈。 信访办电话:0371-62105008。 |
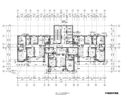
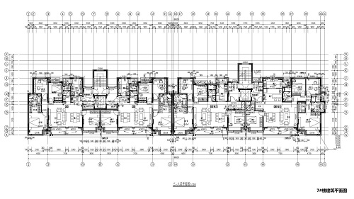
详细内容: | 总平面图、鸟瞰图、效果图、单体平面图、单体立面图 |











