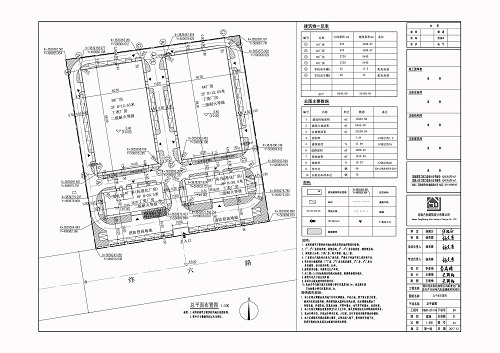
项目名称: | 郑州花花科技有限公司标准化厂房项目 |
公示公告类型: | 批前公示 |
建设/用地单位: | 郑州花花科技有限公司 |
用地类别: | 城市建设用地 |
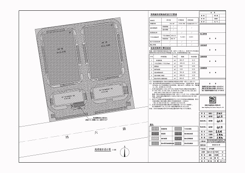
用地位置: | 中牟汽车产业集聚区纬六路北、康平路东 |
用地面积: | 13932.8平方米 |
总建筑面积: | 20109.84㎡ |
本次报建建筑面积: | 10880㎡ |
建筑密度: | 47.69% |
容积率: | 1.44 |
绿地率: | 10.23% |
建筑高度: | 30.5米 |
停车位: | 49 |
公示期限: | 10 个工作日 |
公示日期: | 2018-07-11 |
截止日期: | 2018-07-24 |
经办科室: | 工程规划科 |
经办人: | 马芳 |
咨询电话: | 0371-62105002 |
附加说明: | 查询详细内容,请出示身份证明,到我局办理相关手续后查询。依据《城乡规划法》、《行政许可法》、《河南省城市规划公示制度》等有关法律法规,特此公示。如有意见和建议,请于公示时间内向我局反馈。信访处电话:0371-62105008。 |
详细内容: | 总平面图、立面图、效果图、海绵城市设计 |







