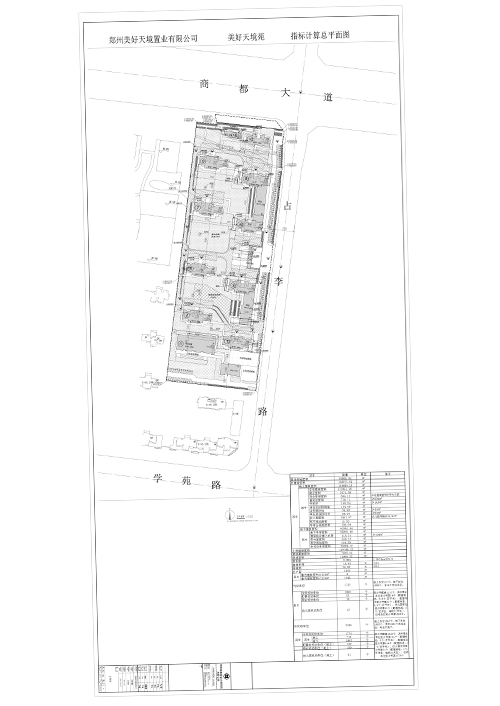
项目名称: | 美好天境苑 |
公示公告类型: | 批前公示 |
建设/用地单位: | 郑州美好天境置业有限公司 |
用地类别: | 居住用地 |
用地位置: | 中牟县城商都大道南、占李路西、占李西路东 |
用地面积: | 39968.94㎡ |
总建筑面积: | 160075.54㎡ |
本次报建建筑面积: | 160075.54㎡ |
建筑密度: | 18.82 |
容积率: | 2.995 |
绿地率: | 35.03 |
建筑高度: | 98.5m |
停车位: | 机动车位1115个,非机动车位2126个 |
公示期限: | 10 个工作日 |
公示日期: | 2018-7-9 |
截止日期: | 2018-7-20 |
经办科室: | 工程规划科 |
经办人: | 张萌 |
咨询电话: | 0371-62105002 |
附加说明: | 查询详细内容,请出示身份证明,到我局办理相关手续后查询。依据《城乡规划法》、《行政许可法》、《河南省城市规划公示制度》等有关法律法规,特此公示。如有意见和建议,请于公示时间内向我局反馈。信访处电话:0371-62105008。 |
详细内容: | 总平面图、标准层平面图、立面图、效果图、日照分析图 |





