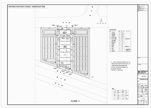
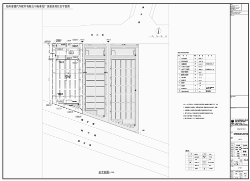
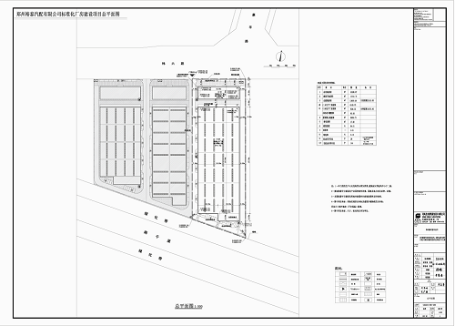
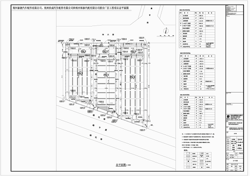
项目名称: | 郑州泰捷汽车配件有限公司、郑州玖成汽车配件有限公司和郑州裕泰汽配有限公司联合厂区工程建设项目 |
类 型: | 工业 |
公示类别: | 批前公示 |
用地位置: | 中牟汽车产业集聚区纬六路南、南干渠北、中兴路东、建设路西 |
土地使用权面积: | 分别为10087.94、10076.91和13342.70平方米 |
公示期限: | 10个工作日 |
公示日期: | 2018年7月5日至2018年7月18日 |
经办科室: | 中牟县城乡规划中心工程规划科 |
咨询电话: | 0371-62105002 |
经 办 人: | 马芳 |
附加说明: | 查询详细内容,请出示身份证明,到我局办理相关手续后查询。依据《城乡规划法》、《行政许可法》、《河南省城市规划公示制度》等有关法律法规,特此公示。如有意见和建议,请于公示时间内向我局反馈。 信访办电话:0371-62105008。 |
详细内容: | 总平面图、鸟瞰图、效果图、海绵城市 |










