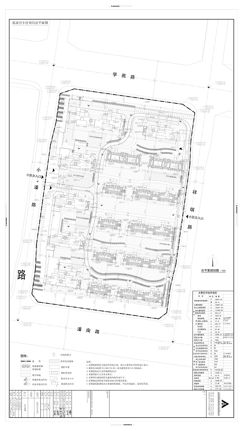
项目名称: | 泓泉宫小区 |
类 型: | 批前公示 |
公示类别: | 修建性详细规划 |
用地位置: | 中牟县小潘庄、学苑路南、祥瑞路西 |
土地使用权面积: | 45431.0平方米 |
公示期限: | 10个工作日 |
公示日期: | 2018年6 月 7日 至 2018年 6月20日 |
经办科室: | 工程规划科 |
咨询电话: | 0371-62105002 |
经 办 人: | 赵琳 |
附加说明: | 查询详细内容,请出示身份证明,到我局办理相关手续后查询。依据《城乡规划法》、《行政许可法》、《河南省城市规划公示制度》等有关法律法规,特此公示。如有意见和建议,请于公示时间内向我局反馈。 信访办电话:0371-62105008。 |
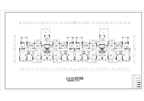
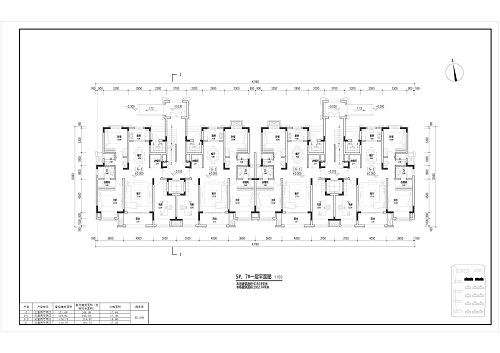
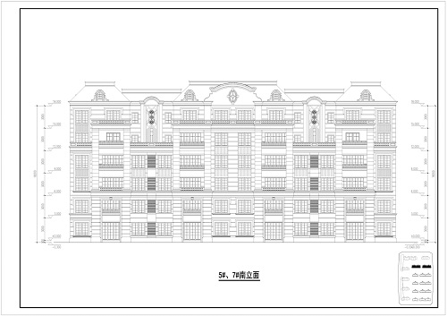
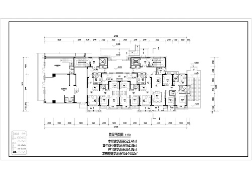
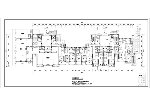
详细内容: | 总平图、设计方案主要平面图、立面图、效果图、指标表、日照分析报告,该公示为征求意见公示。 |

















