公示信息:
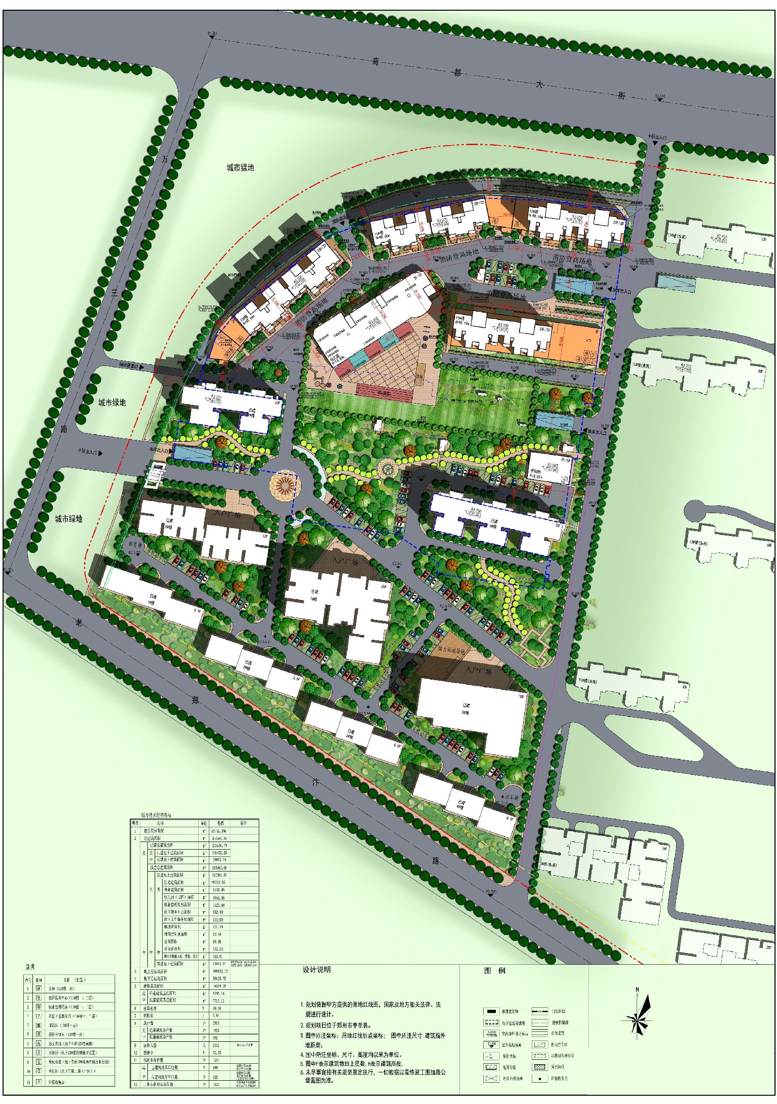
项目名称:星城国际西苑
类 型:批前公示
公示类别:建设工程规划许可证
用地位置:中牟县万三公路东、商都大街南
用地性质:居住
土地使用权面积:79151.396平方米
公示期限:10个工作日
公示日期:2018年3月15日至2018年3月28日
经办科室:中牟县城乡规划中心工程规划科
咨询电话:0371-62105002
经 办 人:肖会敏
附加说明:查询详细内容,请出示身份证明,到我局办理相关手续后查询。依据《城乡规划法》、《行政许可法》、《河南省城市规划公示制度》等有关法律法规,特此公示。如有意见和建议,请于公示时间内向我局反馈。 信访办电话:0371-62105008。
详细内容:总平面图、日照分析图、鸟瞰图、效果图





