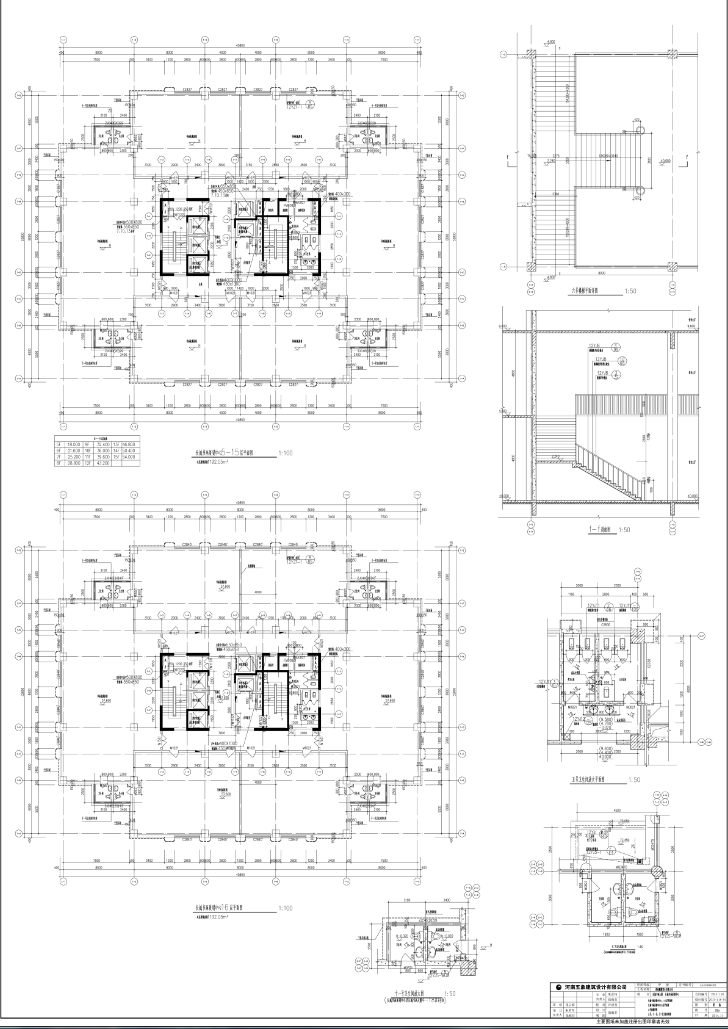
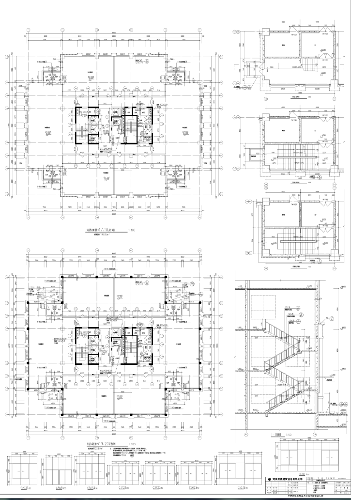
公示信息:
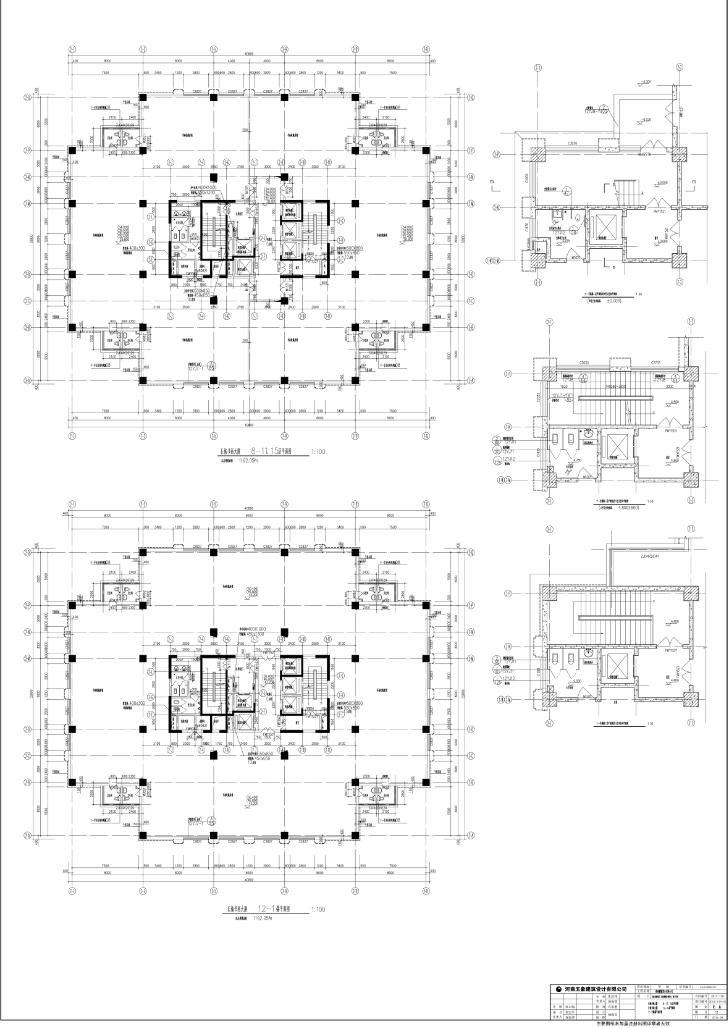
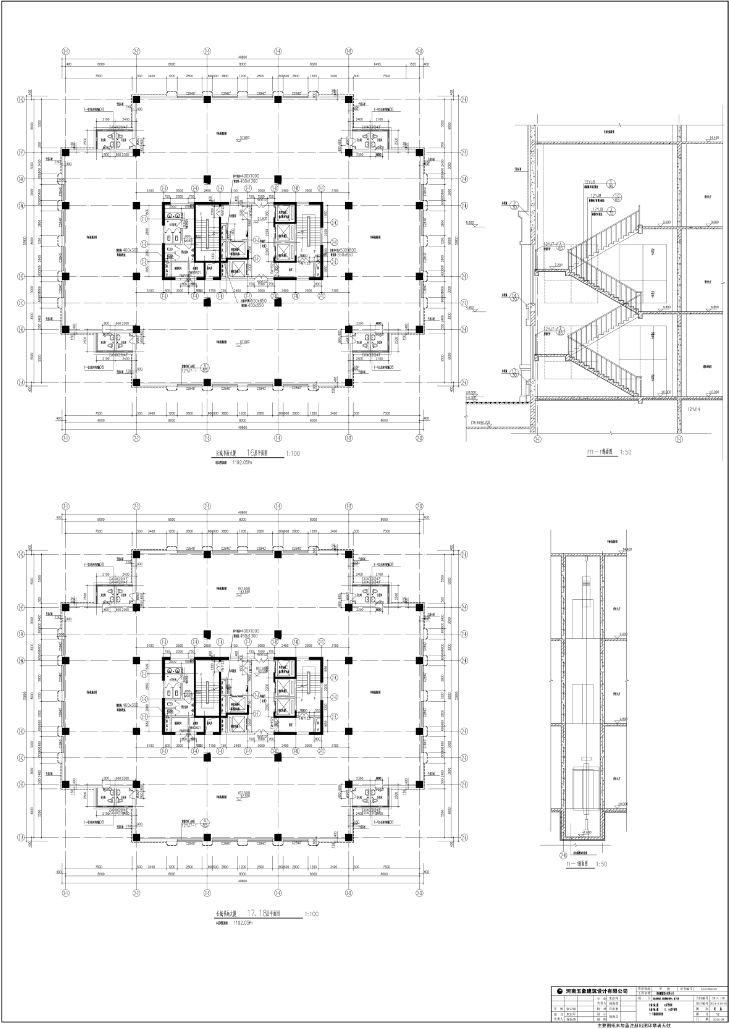
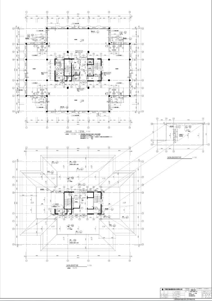
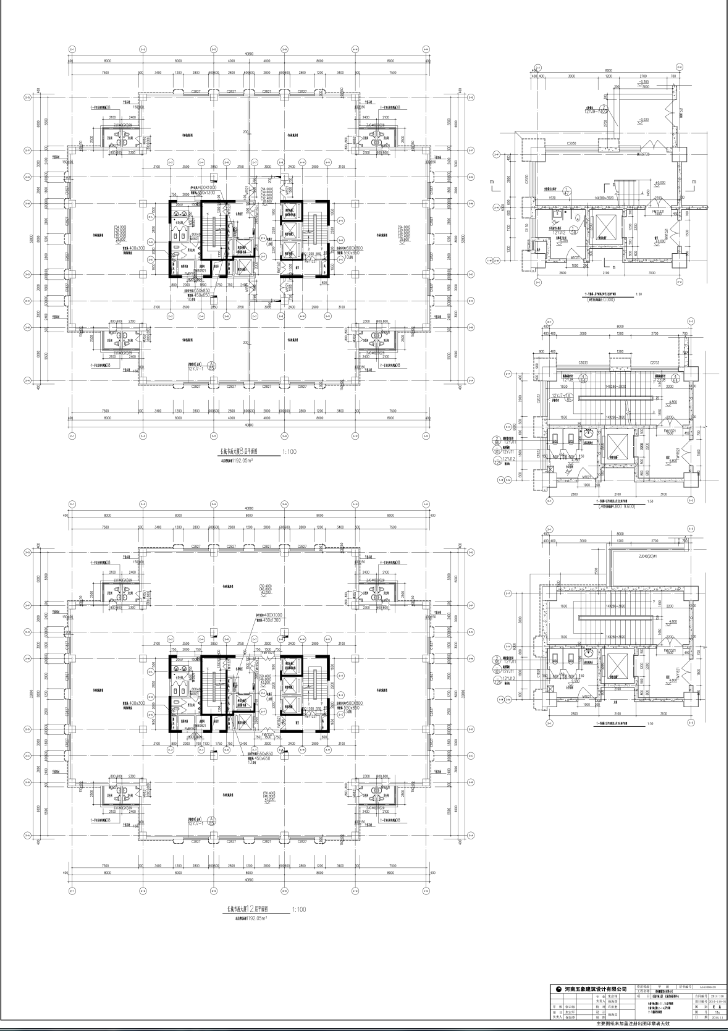
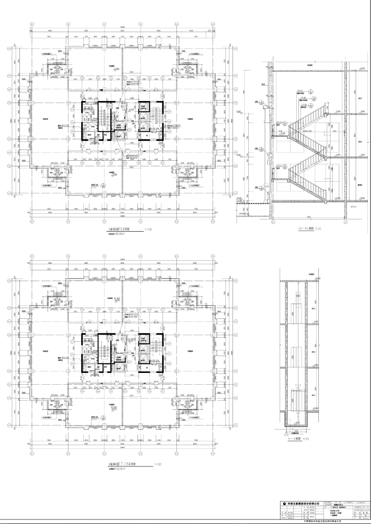
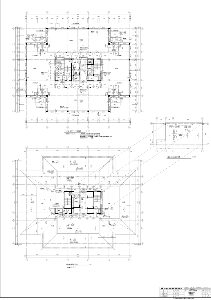
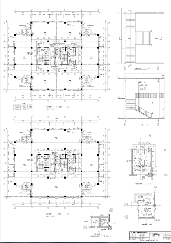
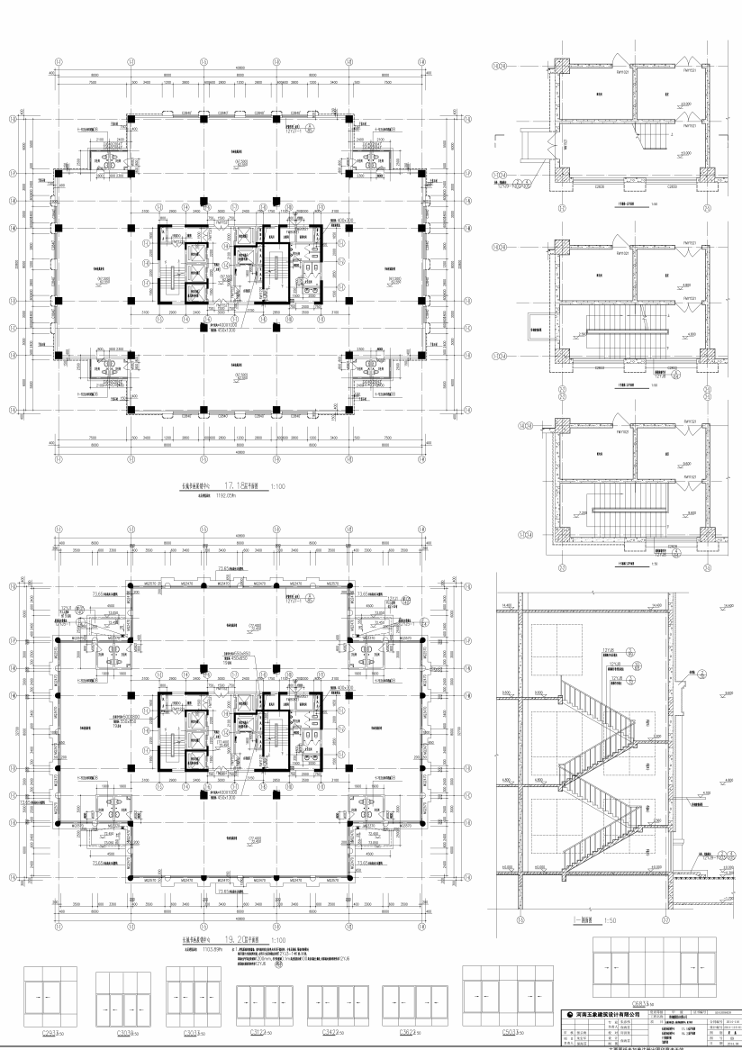
项目名称:长城书画城 (长城书画大厦、长城书画展销中心)
类 型:商业
公示类别:规划变更
用地位置:绿博组团西部新城大道北、牡丹一街西
土地使用权面积:13210.00平方米
公示期限:10个工作日
公示日期:2018年1月23至2018年2月5日
经办科室:中牟县城乡规划中心工程规划科
咨询电话:0371-62105002
经 办 人:肖会敏
附加说明:查询详细内容,请出示身份证明,到我局办理相关手续后查询。依据《城乡规划法》、《行政许可法》、《河南省城市规划公示制度》等有关法律法规,特此公示。如有意见和建议,请于公示时间内向我局反馈。 信访办电话:0371-62105008。
详细内容:总平面图、变更前建筑平面图、变更后建筑平面图











